Warum war ein Gemeindeleben im alten Saal nicht mehr möglich?
Bis zum Ausbruch der Corona-Pandemie Anfang 2020 wurden die Gottesdienste im «alten» Saal in der Rosenstraße in Altingen gefeiert. Der Lockdown wurde dann mit Online-Gottesdiensten überbrückt. Als es dann wieder erlaubt war, sich zu versammeln, war ein Gottesdienst im Saal mit zwischenzeitlich rund 50 bis 60 Gemeindebesuchern nicht mehr möglich – zu eng war die Bestuhlung.
Wo feiert die Gemeinde Altingen seitdem ihre Gottesdienste?
Wir haben viel ausprobiert und uns ein wenig wie «Nomaden» zu Zeiten Abrahams gefühlt: Im Sommer wurden einige Gottesdienste im Grünen veranstaltet, daneben bekamen wir von der Gemeinde Ammerbuch Räumlichkeiten zur Verfügung gestellt. Allerdings wurden wir erst im Jahr 2021 wieder sesshaft, und zwar im Gasthof Sonne in Gültstein, welcher über einen großen Saal verfügt, in welchem ansonsten Hochzeiten und runde Geburtstage gefeiert werden. Diesen Saal konnten wir zwar nicht exklusiv mieten, jedoch für zwei wöchentliche Veranstaltungen.
Wie kann man sich das neue Gemeindehaus vorstellen?
Bereits seit 2021 sind wir nun auf der Suche nach einer eigenen Versammlungsstätte und haben viele Möglichkeiten ausgelotet. Die Gemeinde konnte nun am 9. Juni den Kaufvertrag mit einem Unternehmer in Altingen unterzeichnen. Dieser hat sein im Gewerbegebiet stehendes und im Jahre 1973 erbautes elterliches Haus an die GfC verkauft. Bereits am 13. Juni wurde dem Landratsamt Tübingen das erste Konzept vorgestellt. Am 28. Juni besuchte der Bauausschuss gemeinsam mit dem Architekten das Haus, welches derzeit bis Jahresende noch an Dritte vermietet ist. Die Übergabe des Gebäudes erfolgte zum 1. August.

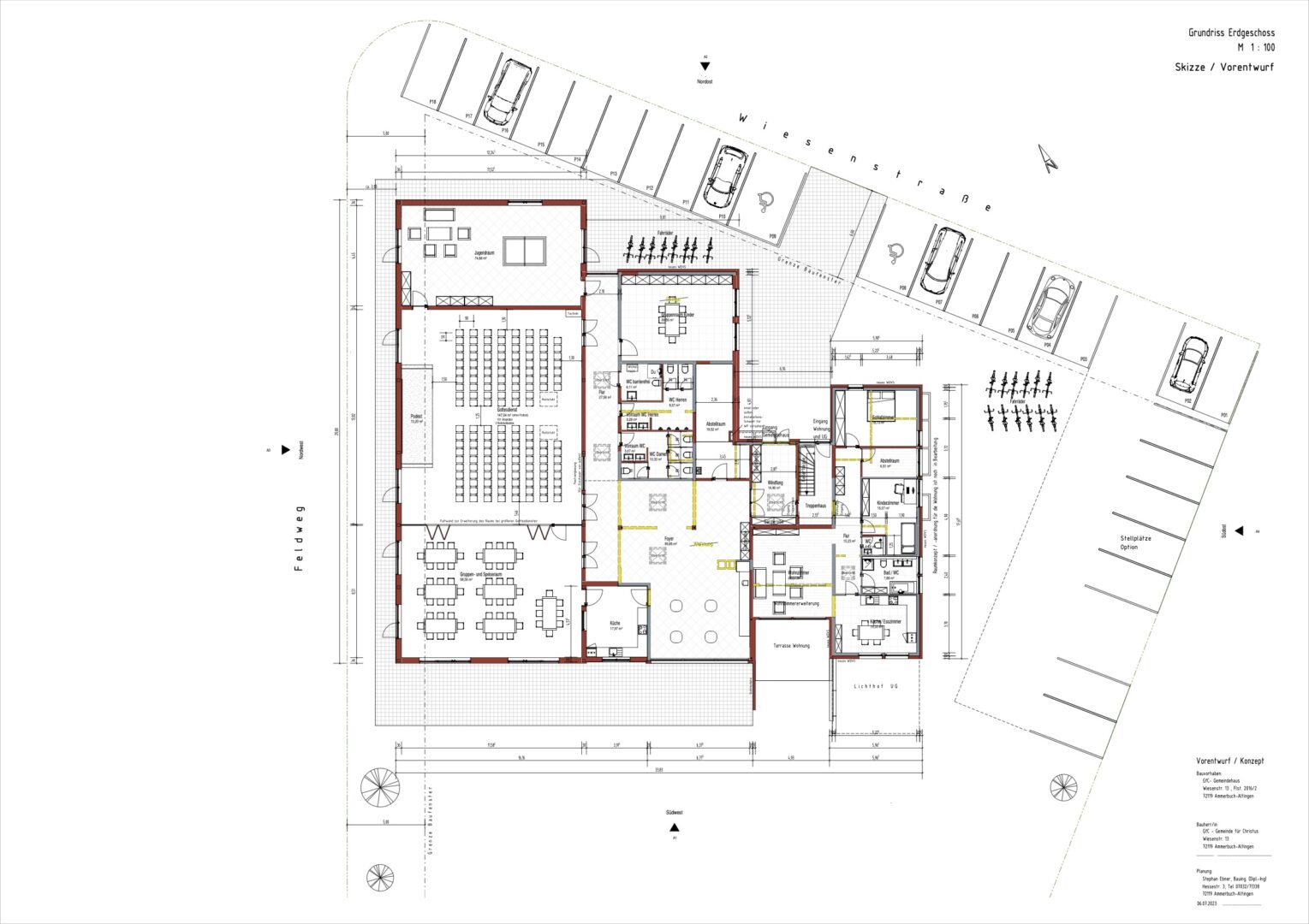
Die Gesamtfläche des Grundstücks beträgt rund 33 ar. An den bestehenden Bungalow soll ein Neubau mit rund 400 qm angefügt werden, welcher einen 160 qm großen Gottesdienstraum mit maximal 150 geplanten Sitzplätzen beinhaltet, daneben einen Mehrzweckraum mit 100 qm und einen Jugendraum mit 75 qm. Der Bestand umfasst eine separate Betreuer- bzw. Hausmeisterwohnung sowie das Foyer des Gemeindehauses, eine Küche und Sanitärraume. Im Untergeschoss des Bestandsgebäudes sollen möglichst 60 bis 70 qm als Büros vermietet werden.

Zum Vergleich: der Saal in der Rosenstraße bot eine Fläche von 60 qm für ungefähr 50 Sitzplätze und war in Betrieb seit 2002, nachdem dieser zuvor vergrößert wurde, aus heutiger Sicht in viel zu enger Bestuhlung.
Die Baumaßnahmen sollen im Frühjahr 2024 beginnen und ca. 1,5 Jahre dauern.
Der Kaufpreis betrug 615.000 Euro, der Umbau wird mit mindestens 750.000 Euro veranschlagt. Bislang sind Sonderspenden in Höhe von ungefähr 900.000 Euro eingegangen. Wer dieses Projekt finanziell unterstützen möchte, kann dies gern tun:
Gemeinde für Christus e.V., Baden-Württembergische Bank, IBAN: DE34 6005 0101 0002 2453 82, BIC: SOLADEST600, Verwendungszweck «Sonderspende Gemeindehaus Altingen»
Zudem sind wir ab nächstem Jahr dankbar für jede helfende Hand sowie Unterstützung für die Helfer während der Bauzeit.
Markus Asch



